• Home
  • About Me
  • Services
    • New Builds
    • Extensions
    • 3D Visualisation
    • Building Regulations
  • Contact
Menu

Birch Wood Design

21 The Links
Bordon, England, GU35 9HB
07540731755
Birch Wood Design

Your Custom Text Here

Birch Wood Design

  • Home
  • About Me
  • Services
  • Projects
    • New Builds
    • Extensions
    • 3D Visualisation
    • Building Regulations
  • Contact
BWD Logo Wide.jpg

Extensions

Extensions

Wildwood

Wildwood

Rear two storey extension and reconfiguration of internal space

Wildwood 05 Proposed Plans-1.jpg
Travers Barn

Travers Barn

This converted tractor barn needed a bit of life back in it so adding the porch and dormers gave much better light internally

Travers Barn Plans.jpg
Travers Barn Elevations.jpg
Sutton Fields

Sutton Fields

A two storey side extension and single storey rear extension was granted to allow this family more space to grow

Sutton Fields Elevations.jpg
Rookswood

Rookswood

This family wanted a new garage with accommodation above but to still be linked to the house

Rookswood 05 Proposed Plans-1.jpg
Rookswood 06 Proposed Plans-1.jpg
Rookswood 07 Proposed Elevations-1.jpg
Rookswood 08 Additional Elevations-1.jpg
Alder House

Alder House

This family wanted a new bedroom created over their existing converted garage

Alder House 05 Proposed Plans-1.jpg
Weir Road

Weir Road

A single storey rear extension to create more living space for this growing family

67 Weir Road Elevations.jpg
Lemon Grove

Lemon Grove

A simple infill rear extension to replace an existing conservatory and dead space

63 Lemon Grove Elevations.jpg
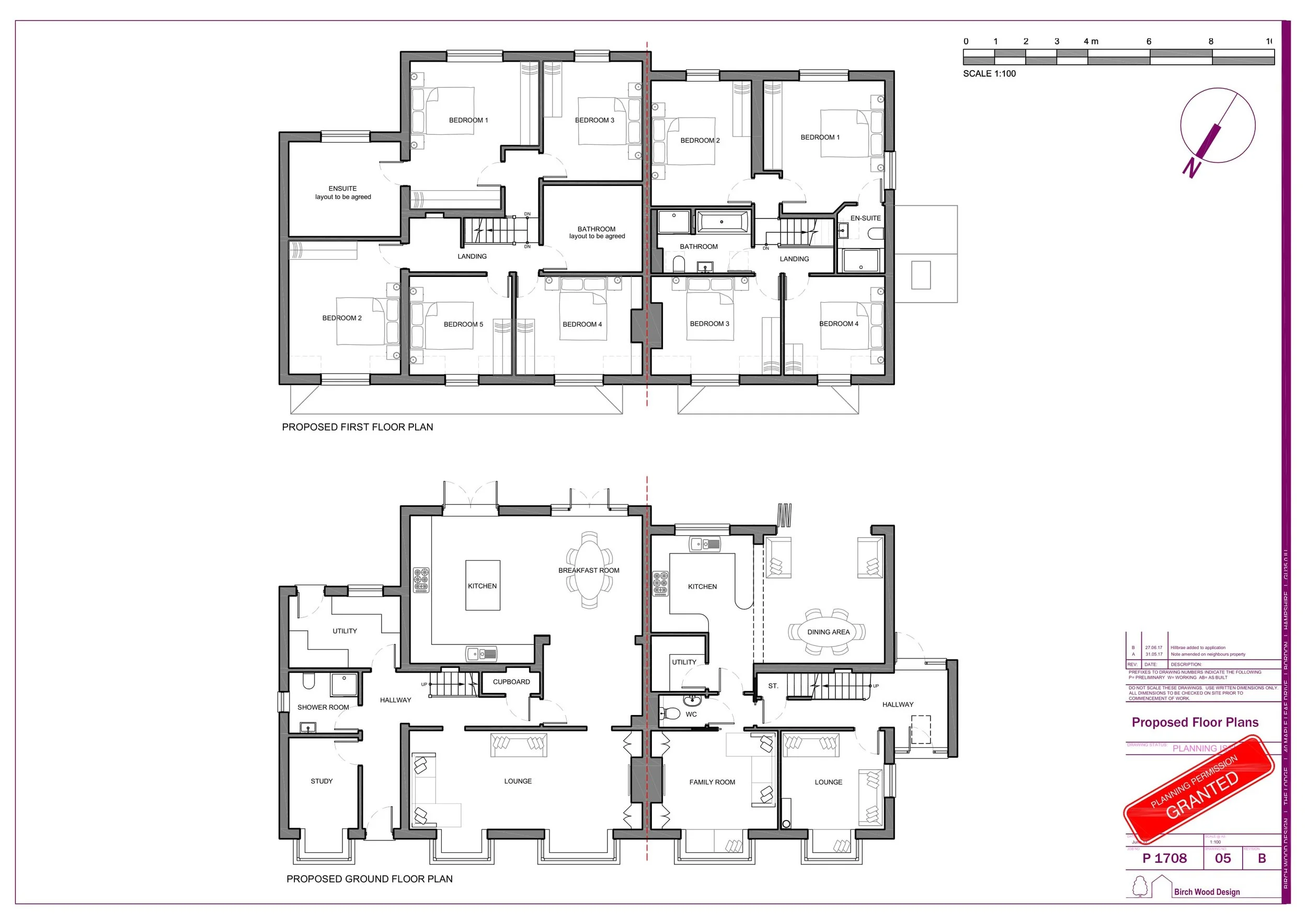
Haflinger Drive

Haflinger Drive

After a garage conversion this family then wanted a larger kitchen/dining area for the family and entertaining

Five Acres

Five Acres

This family was running out of space for their growing family and wanted more living and sleeping accommodation

19 Five Acres Close Plans.jpg
Slade Road

Slade Road

An amazing living space was created for this family with very little new build. Reconfiguring the internal space, converting the double garage and adding a small single storey rear extension has drastically altered the whole feel of this house

8 Slade Road 06 Proposed Elevations-1.jpg
Church Fields

Church Fields

A drive through garage was the main reason for this build so that the owner could service and restore cars in the unit at the bottom of his garden

7 Church Fields Elevations.jpg
Forest Villas

Forest Villas

Extra space was required for the family as well as an internal office for a home business rather than having to work at the bottom of the garden!

1 Forest Villas 06 Proposed Elevations-1.jpg

POWERED BY SQUARESPACE